绿地晶萃97-102



作品说明
- 项目类型:别墅
- 项目地点:苏州市
- 建筑面积:328.0000㎡
- 项目造价:300.0000万元
- 主案设计师: 王林
- 参与设计师:王林
- 竣工时间:2019-11-02
- 设计机构:星杰国际设计
-
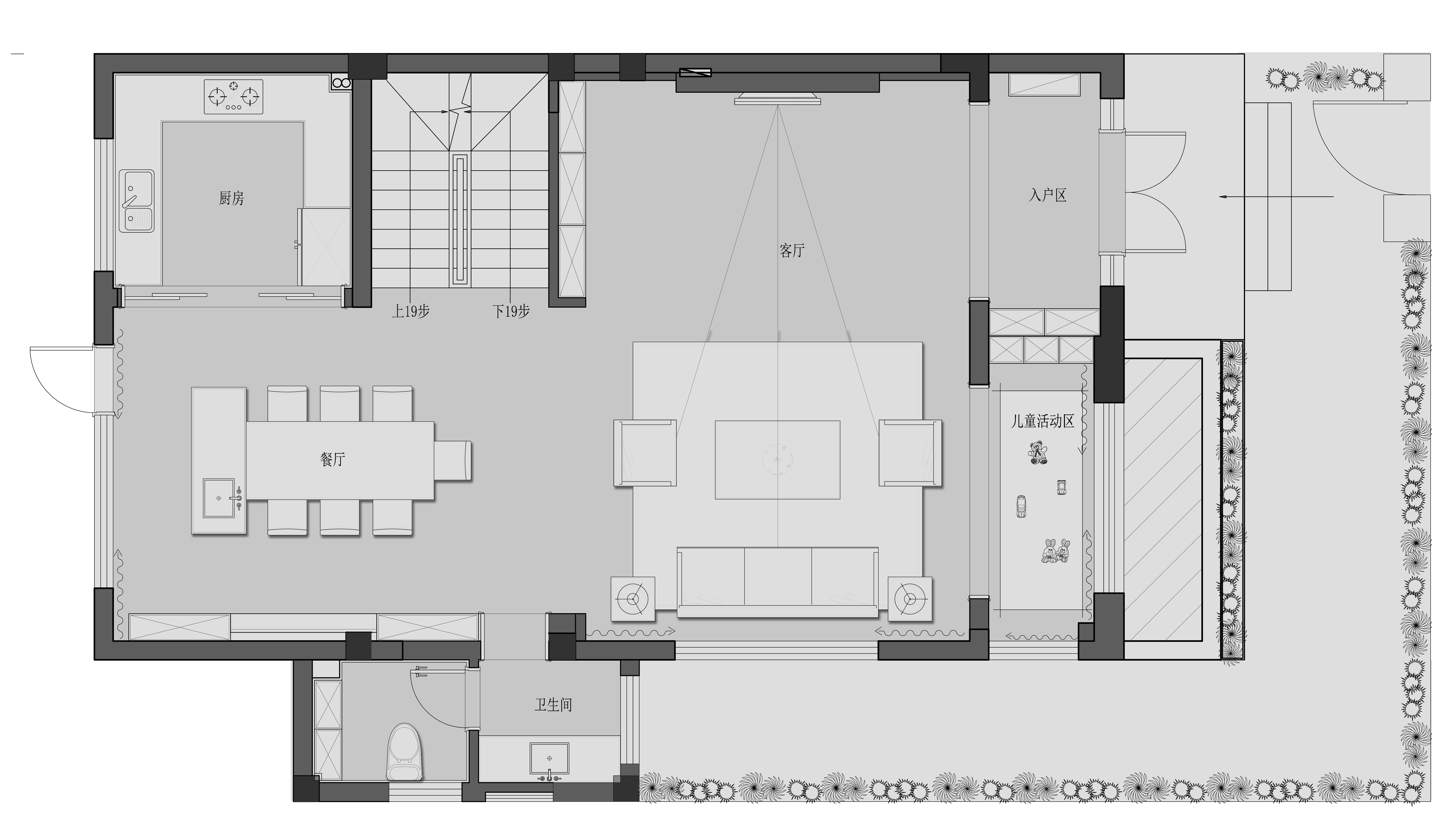
项目定位:此次主要的空间氛围偏向于现代,由于业主是两位年轻的90后,对于整个色调的接受度会比较大,所以在整个色彩搭配上会更加的大胆,新颖。
-
空间意境:客餐厅地面采用偏深色的地砖,使得整个空间更沉稳,顶面则摒弃过多复杂造型,采用大面积平顶设计,加上小灯源的设计,空间层次感更为丰富。
-
空间布局:为保证客餐厅南北通透,及空间动线更为合理,对楼梯的部分稍作调整。主卧为了给业主营造更加舒适的空间,最大化保留了空间的使用范围。同事采用大面积白色衣柜设计,增加延伸感。
-
设计选材:涂料及木饰面都采用了高环保的材料,同事家具也选用进口的高端定制材料。就算刚完工走进去也完全闻不到一点气味。
-
用户体验:两位年轻的业主对工地的完成效果很满意,尤其是客餐厅的整体氛围。同时也很享受在地下室休闲区的个人时光。
7bf4082c690a982d
3c8a6879fc67b9a2
-8982c3b06d163d0
-3b0c07afadbfdd5
246f8e9f369c9310
5506d80fbb1fc1b2
2329d33eb0f4b41
7406042de6cac01a
-5b768dc109d88384
-223bdf1f4516d12e
-723b8982aa4dffa5
655c85198d69114c
640bc121a6e4145d
-796cd2507649cef8
-23d065a5001eeae7
42defd427b1d03d6
-6a164aea7e253e
F6D2267AF9DD67F417718E64060E1ABA
A098B4D6FFA1A4CA4633AD6DDA321A66

