半岛铁盒



作品说明
- 项目类型:餐饮
- 项目地点:扬州市
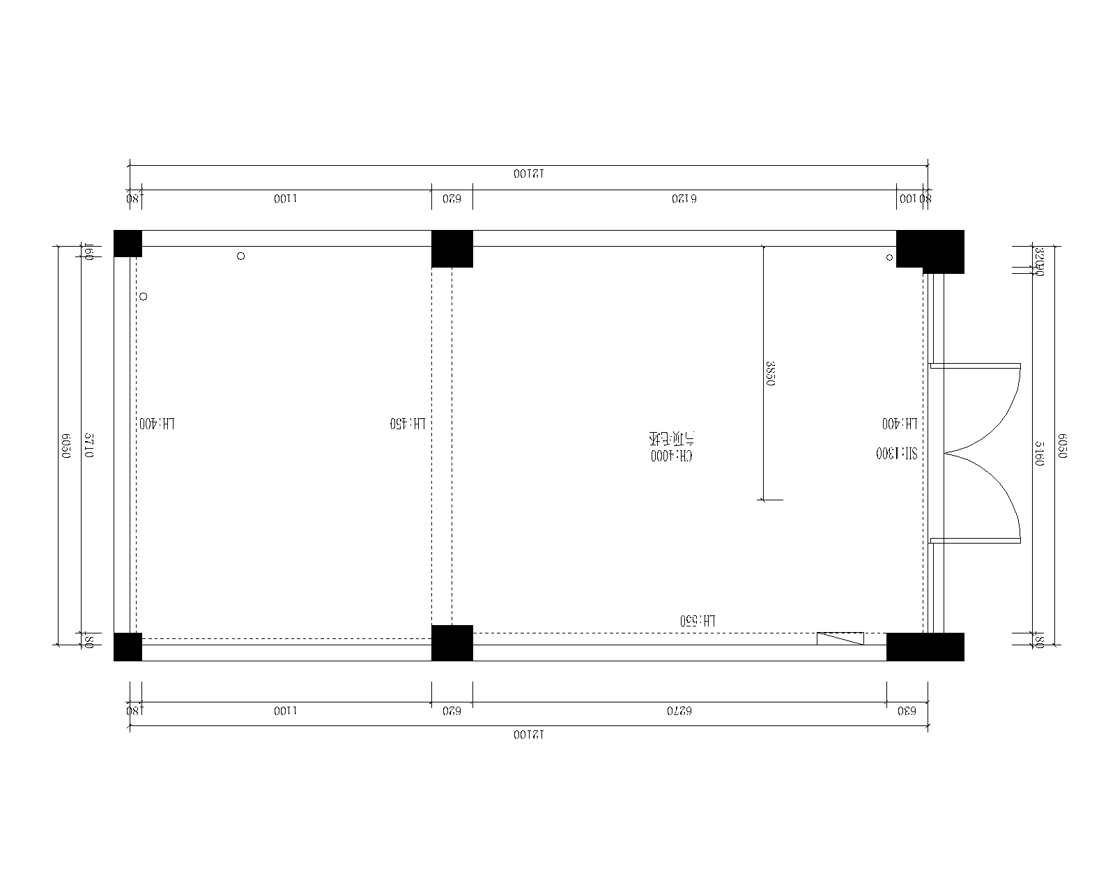
- 建筑面积:120.0000㎡
- 项目造价:25.0000万元
- 主案设计师: 王飞
- 参与设计师:王飞
- 竣工时间:2019-05-20
- 设计机构:华浔品味装饰集团
-
项目定位:设计师在接到这个案子时,是一个长方形的户型,看似很简单就可以设计,实则想做出特色还是很有挑战性,此案是一个法式高端甜品店,所以设计师的初衷是怎么让店吸引更多的顾客来探店。
-
空间意境:本案设计不仅运用了现代几何手法,而且从废弃的民宅中收集砖块做成具有传统特色的砖墙,古与今的结合也寓意着打破常规。做新的设计
-
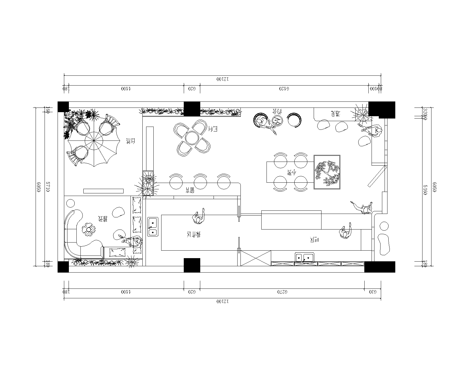
空间布局:本案从进门的几何造型,到室内的box和吧台结合的空间,再到里面别有洞天的私密空间,无不体现设计的创新。
-
设计选材:废弃的民宅的砖块的重复利用响应了联合国废物再利用的号召,地坪漆代替传统大理石铺设不仅在造价上节省了,而且降低了辐射。墙面会呼吸的硅藻泥将空气中的甲醛吸收再分解有效的净化了空气。
-
用户体验:每每下午时分,当阳光透过墙体的造型洒进店铺中,都会吸引很多顾客前来打卡拍照。
WechatIMG96
WechatIMG87
WechatIMG89
WechatIMG88
WechatIMG99
WechatIMG102
WechatIMG111
WechatIMG104
WechatIMG78
WechatIMG92
WechatIMG82
WechatIMG79
WechatIMG81
WechatIMG84
WechatIMG86
WechatIMG90
WechatIMG91
WechatIMG93
WechatIMG95
WechatIMG97
WechatIMG98
WechatIMG103
WechatIMG83
WechatIMG85
WechatIMG107
WechatIMG108
WechatIMG110
WechatIMG80
4dc4d7d34987b0d0da650fb591420ff47bde0313
cb8f24dc2252b8b3b0dadad2889e8c267adb0c00

