月光边境



- 项目类型:私宅
- 项目地点:成都市
- 建筑面积:345.0000㎡
- 项目造价:45.0000万元
- 主案设计师: 王华薇
- 参与设计师:王华薇
- 竣工时间:2018-12-18
-
项目定位:平凡生活的极致不是繁花似锦,而是无处不在且不刻意的小浪漫。业主是一家四口,儿女双全,所以业主的出发点是希望构建一处能够让孩子享受天伦之乐的温馨港湾,同时,每个家庭成员也能在里面拥有属于自己的小天地,聆听内心的声音。在契合后我在结合功能与美学需求后,打造了一处弥漫着平凡人家的烟火气,却处处充斥着浪漫与诗意的居家之所。
-
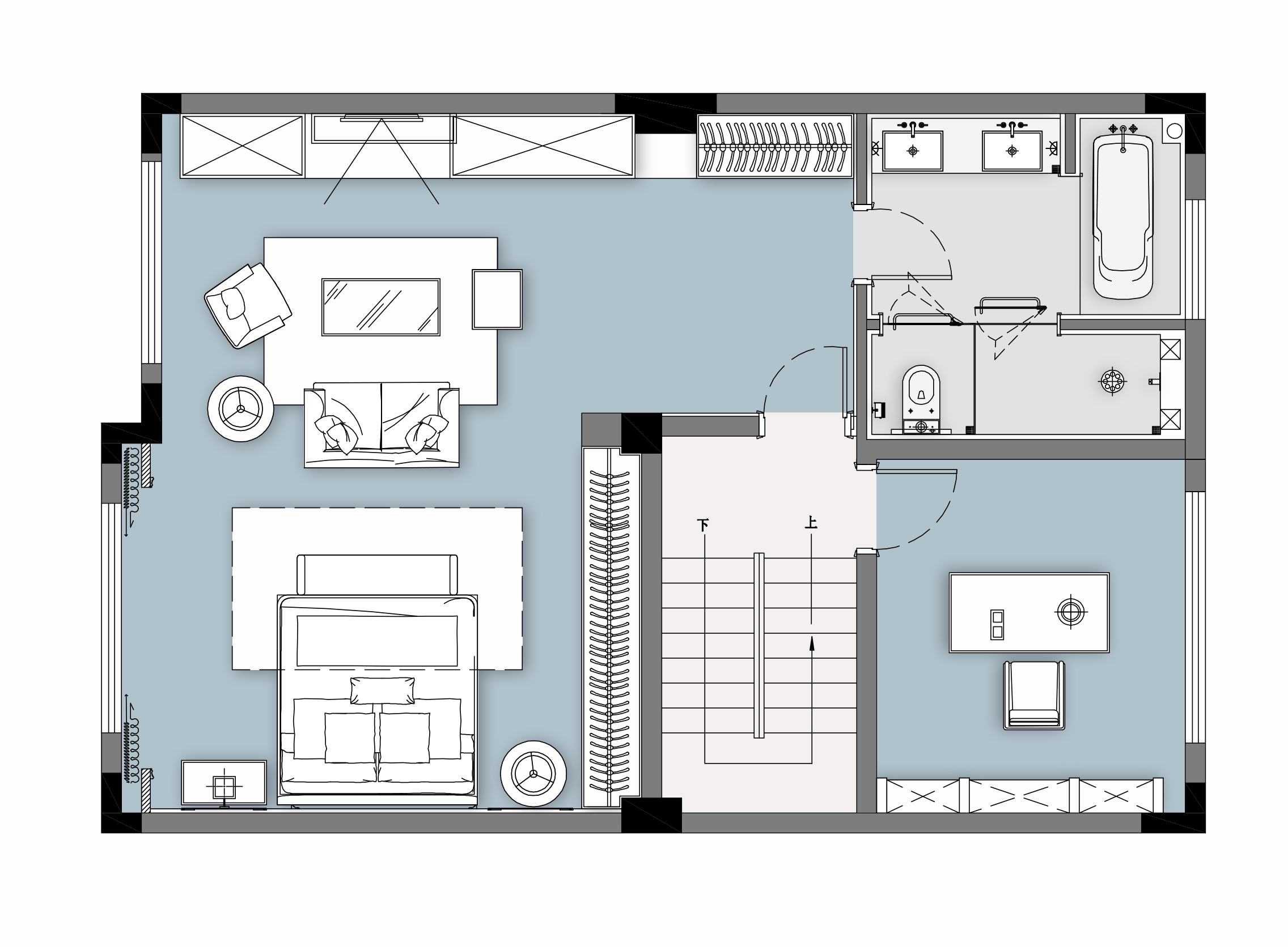
空间意境:客厅选用浅色调,弥补了采光不足的缺陷;将餐厅、西厨厨房设置一处,连成一条线,便于功能上的使用;卧室的打造皆以满足不同居住者的实际需求为前提,不论是儿子房的下沉式学习空间,或是女儿房的梳妆区域,还是主卧里的小天地,都是在整体里划分出来的个性化,同时维持了统一性;将地下一层设计为中式风格茶楼,既安静,也避免了因风格碰撞带来的违和感。美式电视柜较高,考虑到实际情况对其进行改造,削矮到合适的高度;考虑到主卧室入门处的空间限制,所以将床头柜选用一圆一方两种形状,并将方形床头柜削矮,将圆形床头柜垫高,使其高度达成一致
-
空间布局:室内原有的空间结构较为复杂,多为错层,各个功能区的面积相对较小,因此,我在选择家具时,必须要考虑其体量,与整体空间尺度维持平衡;硬装基础已经成型,在软装设计时限制因素较多,许多家具、材料皆为定制,既要考虑体量,也要考虑整体风格,灯具的灯线和位置也要用心布置。
-
设计选材:出发点是让落地效果呈现出简洁中透露出精致与艺术的感觉,因此并未选择大面积的大理石,金属等风格较强的材质,而是以素色墙纸,亚麻棉质布面为主,营造简朴亲肤之感,点缀少量雕花样式的金属材质,弱化现代感,展现轻盈的通透感;运用大理石砖进行异形铺设,进行空间划分;整个空间以浅色调为主,灰调蓝色和纯白色营造温馨浪漫的空间氛围,木质地板触感温润,共同呈现出温暖不失格调的居家空间。
-
用户体验:客户说:我们对家的要求其实很简单,希望设计师充分利用空间,打造一个足够温馨、包容的小天地,集实用和美观于一体,这是我们美好梦想的起点,也是我们平凡生活的归宿。最后看到呈现的软装效果,我们所有人都非常满意,无论是色彩还是家具都是理想中的模样,很感谢设计师的用心,想我们所想,圆我们的梦。
01客厅明亮的自然光穿过落地窗边的轻纱轻柔而均匀地洒落在每一寸空间,微风乍起,轻纱飘动,光影在空间里行走、顿足,不疾不徐,悄然无声,于不经意处散发出的诗意才最为动人。
02客厅
03餐厅,室内原有空间结构较为复杂,多为错层,各个功能区的面积相对较小,因此,在选择家具时,必须要考虑其体量,与整体空间尺度维持平衡;
04西厨,倒台造型简洁,表面光滑,金色镂空圆凳底座犹如藤蔓,于烟火气中传达出精致的艺术感,这一方区域足以满足一场随意而温馨的闲谈时光,平凡生活的乐趣也正是因此而来。
05儿子,房延续整体的浅色基调,深浅交加的几何图案在整面墙上整齐排列,大气中不失富有想象的创造力,榻榻米上的素色床品是无须触碰便能感知的温暖与细腻,与实木地板相互呼应,共同营造一个舒适自然的好眠空间。
06儿子房,空间落差将学习区域与睡眠区域分离开来,无疑是最为简单有效的做法。
07主卧室,灰调蓝色和纯白色营造温馨浪漫的空间氛围,木质地板触感温润,共同呈现出温暖不失格调的居家空间。
09主卧室
08主卧室光线穿过落地窗,轻柔地洒落在房间中,让人心生安稳,灰蓝色和深灰色都不是喧宾夺主的色彩,点缀其中,反而传递出让人安心的力量。
10书房
11卫生间简洁而不失质感,四周瓷砖墙面上波纹如同涟漪,深浅不一的灰色丰富空间层次,纯黑色洗手台低调大气,隐隐有灯光流转其上,既不失现代的简约时尚,也独具经久耐看的艺术感。
12茶室,家不被特定的风格捆绑,随心而动,才是设计的方向和灵感。
13茶室从外观便能窥见负一楼的茶室与整体风格的“背道而驰”,一中一西,一古朴一精致,但归根结底,这都是生活体验的两面性,目的是相同的——把握已知的舒适,探索更多的可能性。
一楼客厅平面,和负一楼车库平面图,室内原有空间结构较为复杂,多为错层。
一楼错层餐厅和厨房空间。
二楼儿子房和女儿房。
三楼主卧室和书房,每个家庭成员拥有属于自己的小天地

