-
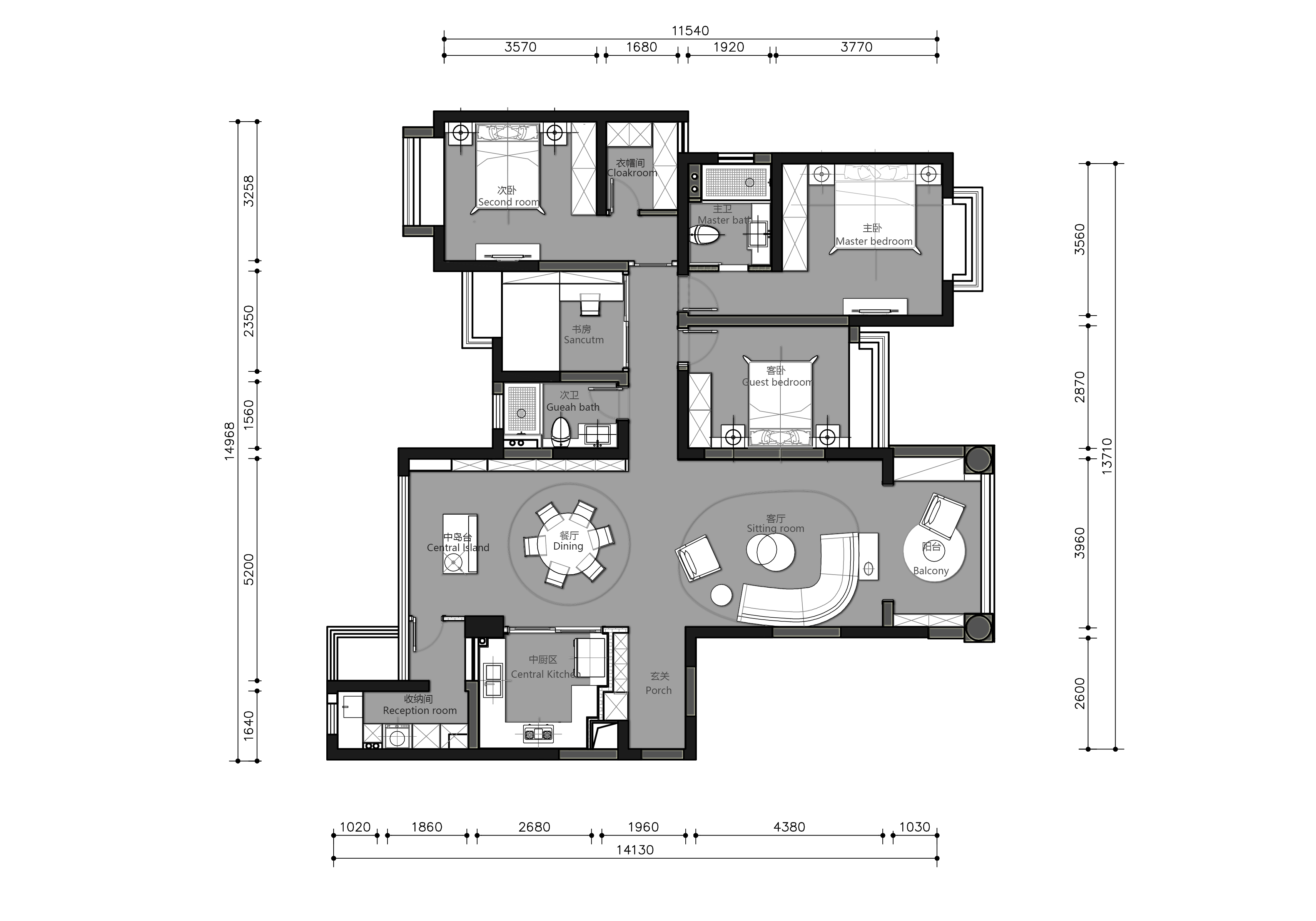
项目定位:户型是雅居乐很典型的户型,南北通透,且南北两边都有超大的观景阳台。四室二厅三卫。尊享体验。唯一美中不足的是有一个超长的过道。且过道的顶头是一个房间,如何将空间大平层的感觉做出来,以及弱化超长的过道空间,是设计的重点
-
空间意境:对于人居空间设计来说,基于生活享受、精神满足、情感共鸣等多维度诉求,在意识感觉上,对于品质生活的极致追求和美的艺术魅力是相辅相成的,这是一个要接近居者内心的地方。
-
空间布局:在做方案的时候 针对这个户型不太满意的地方做了局部调整。将超长的过道分成了三部分设计空间 : 第一部分 进门门厅的独立空间 将具备收纳 换鞋 整体储藏柜设计;对面是一整面的换衣银镜 ,无形中扩大了门厅的空间感觉。在加上顶面和地面做了呼应的设计,让入户的仪式提升。第二部分,将客餐厅空间中间的过道忽略来设计,通过顶面 地面的的整体设计将两个空间融合在一起。同时阳台的空间也纳入客餐厅区域。整体改造后让大平层的优点尤为凸显。第三部分是将房屋后半部分私密空间 运用顶面和末端的端景来整体做出了空间的亮点,同时又规避了
-
设计选材:材料说明:
瓷砖LD 地板 书香门第 洁具科勒 橱柜志邦 整屋定制柯尚 -
用户体验:业主是一名汽车工程师,很善于交流。刚开始沟通的时候对设计师的作用, 非常排斥。 因为他觉得设计没任何作用就是画图。之前房子装修的设计师就开了个工,画个图就再也没去现场。所有东西都是他们自己来弄得。不过这次装修让他对设计师有了非常大的改观。在空间中业主最满意的莫过于实景作品高度还原效果图,让设计真正的做到效果前置
20181130-陈辰-雅居乐滨江国际-丛林-打包-小图 (2)
20181130-陈辰-雅居乐滨江国际-丛林-打包-小图 (9)
20181130-陈辰-雅居乐滨江国际-丛林-打包-小图 (1)
20181130-陈辰-雅居乐滨江国际-丛林-打包-小图 (8)
20181130-陈辰-雅居乐滨江国际-丛林-打包-小图 (4)
20181130-陈辰-雅居乐滨江国际-丛林-打包-小图 (6)
20181130-陈辰-雅居乐滨江国际-丛林-打包-小图 (3)
20181130-陈辰-雅居乐滨江国际-丛林-打包-小图 (5)
20181130-陈辰-雅居乐滨江国际-丛林-打包-小图 (7)
20181130-陈辰-雅居乐滨江国际-丛林-打包-小图 (13)
20181130-陈辰-雅居乐滨江国际-丛林-打包-小图 (11)
20181130-陈辰-雅居乐滨江国际-丛林-打包-小图 (12)
20181130-陈辰-雅居乐滨江国际-丛林-打包-小图 (14)
20181130-陈辰-雅居乐滨江国际-丛林-打包-小图 (16)
20181130-陈辰-雅居乐滨江国际-丛林-打包-小图 (15)
WechatIMG1448
0
0

认证 · 让您身份增值
6651