重庆万科悦湾双拼别墅
1901
作品说明
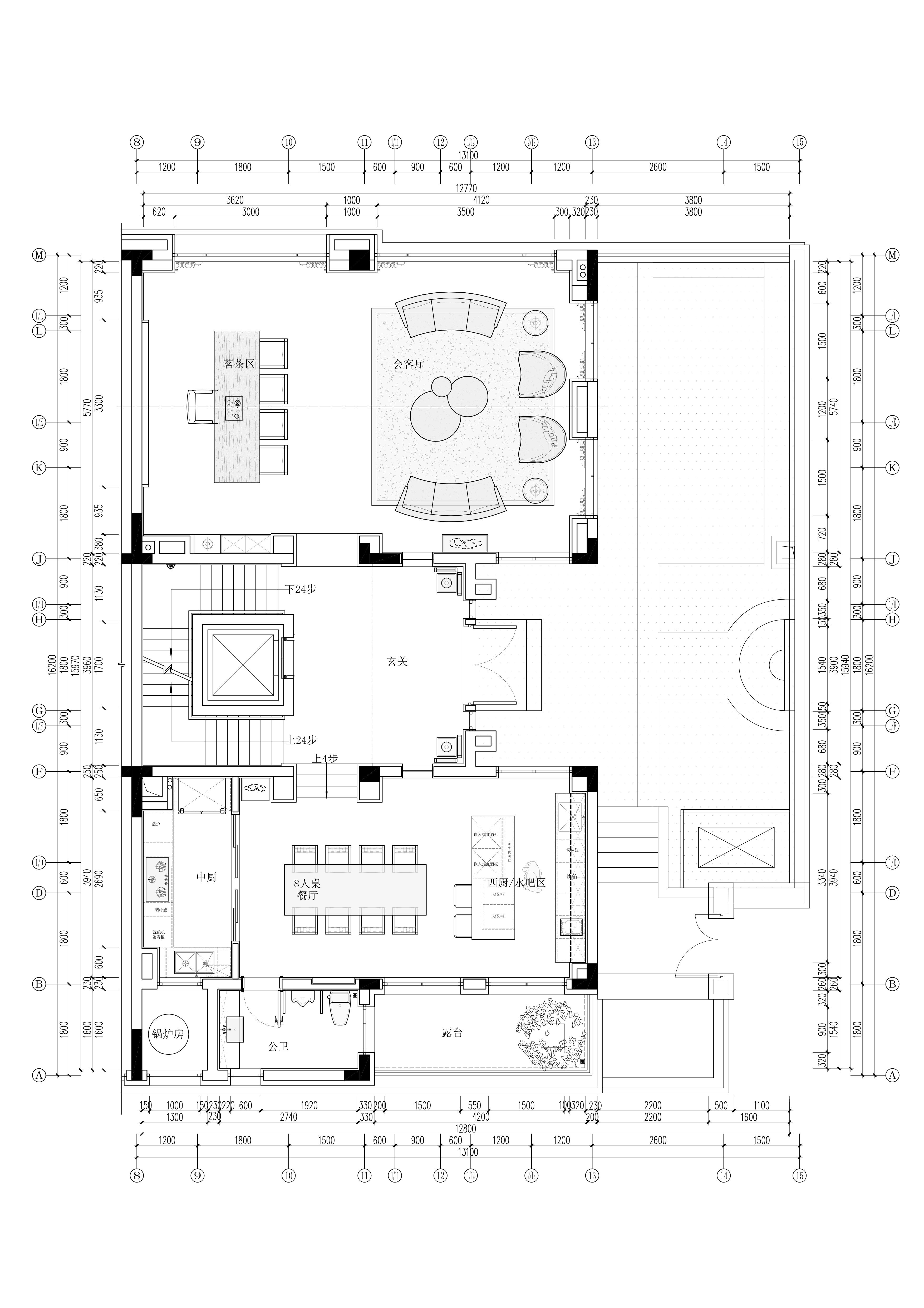
- 项目类型:别墅
- 项目地点:重庆市
- 建筑面积:700.0000㎡
- 项目造价:600.0000万元
- 主案设计师: 李坚明
- 参与设计师:陈壬多、谢陆琼、黎咏轩、吕柱坚
- 竣工时间:2019-10-12
- 设计机构:东莞市蜜尔陈设设计有限公司、东莞市尺度室内设计有限公司
-
项目定位:别墅不仅仅是一个住所,为业主在业余时间寻求另外一种生活方式,注重生活的舒适和品质,满足,质感生活的同时不失娱乐和休闲的趣味。细打磨奢美生活品质,将当代构成美学设计注入上流阶层的审美趣味、个性和艺术选择,融合当代艺术于都会空间。在极致奢华中知停而行,沉淀回归生活。
-
空间意境:以康定斯基的构成美学理论作为空间的传达语言,艺术气韵通过不断的改变形态,化为多重的元素延伸于这个奢靡的空间内。让艺术融合、流通、渗透入生活的品质中。色彩以暖灰色系为主调,时尚奢华、精致、专注细节的现代气质,大胆的色彩及金属材质的巧妙碰撞,增加空间趣味,软装家私与饰品点缀,体现质感生活的追求,引入装置艺术的理念,通过简化重构,运用到室内设计,多了一份艺术装饰的趣味同时提升生活品质感。
-
空间布局:空间以人为本,根据高品质生活量身定做个性功能空间,增加空间的丰富性,实用性,空间以功能与展示相结合,通过每个空间简单的重构,增加空间隔断的虚实材质的变化;让每个空间变得更有趣味,同时,让每个空间都具备其该有的功能形式。整体区域开敞舒适,关注点在人与空间关系的探索,我们希望这种形式感能提升品质生活的舒适度。
-
设计选材:意大利蓝大理石、丹尼尔灰大理石、爵士白大理石、染色直纹欧洲枫影、染色麦当娜树榴、多层实木木地板、乱纹香槟金、夹丝玻璃、车线皮革等。
-
用户体验:现代人追求精致轻奢的生活品味,社交场所也逐渐从公共场所转向于自住空间,更具私密性的同时兼具舒适性,集居住、社交、娱乐于一体的多功能别墅,让日常生活拥有了更多可能性和趣味性。私人的晚宴,点缀精致的花艺,赋予多样化元素的魅力与格调,在这里既能享受一方浪漫的居所,又能感受自然与空间的相互交融,体验品质生活。
0
0

认证 · 让您身份增值