新城市花园



作品说明
- 项目类型:住宅公寓
- 项目地点:南京市
- 建筑面积:140.0000㎡
- 项目造价:600000.0000万元
- 主案设计师: 李萍
- 参与设计师:李萍
- 竣工时间:2019-11-06
- 设计机构:兆石室内设计有限公司
-
项目定位:当代人都处在一个类似于机器人的工作模式下,下班之后每个人都希望能给自己找一个温馨舒适的空间来安放疲惫一天的身心。
本案是一对年轻夫妻未来居住的地方,设计师很深入的了解了客户心理需求,为此展开了新房的设计。
客厅与餐厅是一体化的设计,给人一种视觉上的通透感,鱼骨纹的木地板给空间带来一种流动的感,同时也与木饰面的墙壁和顶面的色彩产生的互动的氛围,客厅一角的那一抹绿植给空间带来了生机感。开放式的书房让屋里的空间格局不限与一处,使其学习办公时没有一点压抑感。简而雅的卧室让你在休息时心灵得以安放,享受着温馨的时 -
空间意境:男女主人都是特殊学校老师,喜欢中式传统文化,偶尔去买些古玩,一些字画,此案以古典韵味创造一个儒雅的空间氛围,从而达到客户心中理想家的模样,同时也体现了设计师的细化带来的精作。
-
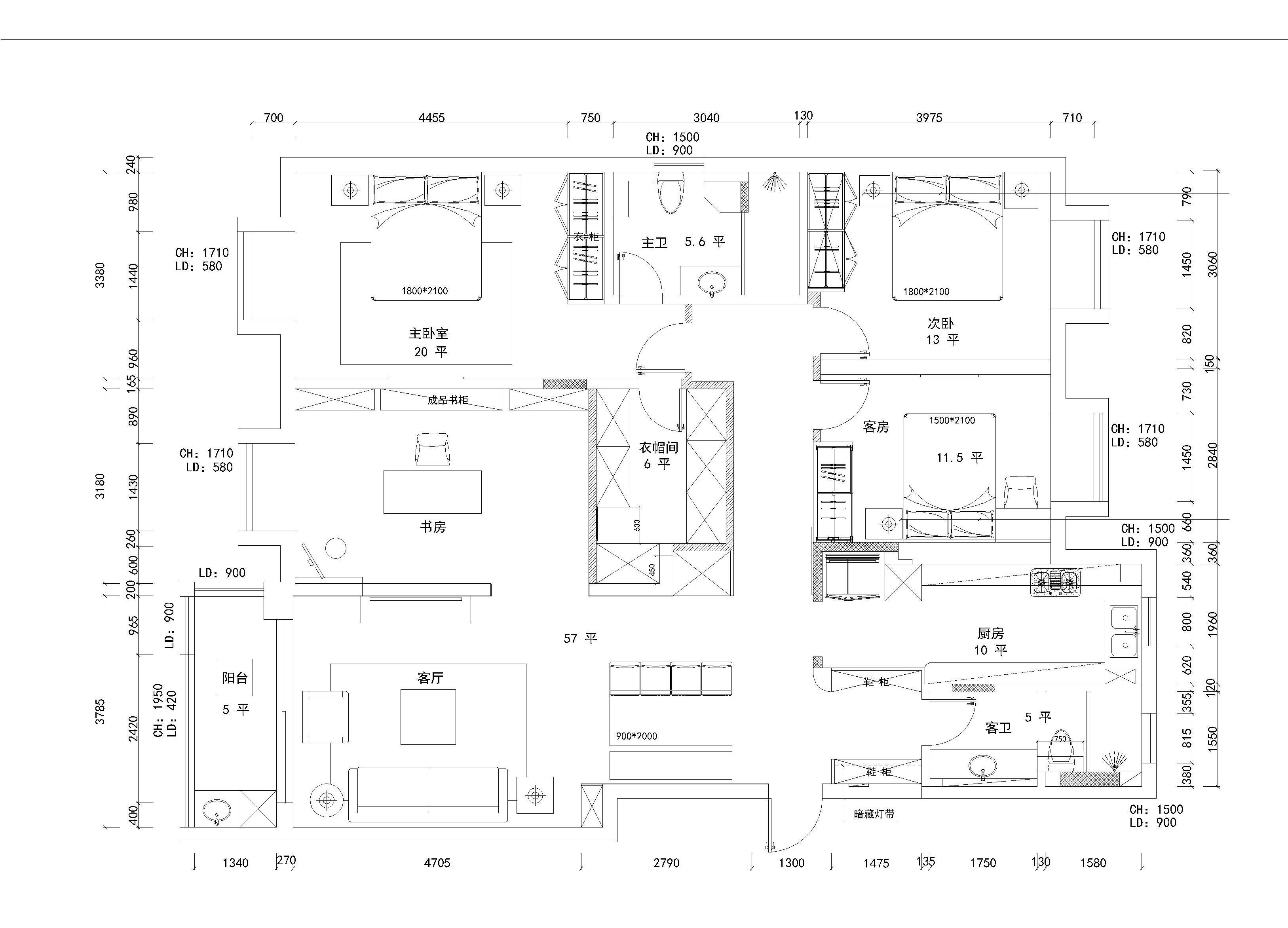
空间布局:我们打开客厅和书房之间的墙,去掉了进门挡在餐厅和客厅之间的隔断,阳光就更好的从南穿北;厨房L型设计成U型,增加储物空间的同时改变门的方向,打开厨房和餐厅之间,用高柜的形式将冰箱布置在厨房移门外,巧妙的窄变移门可分可合的藏在冰箱高柜后面,厨房时而敞开时而闭合;北边的光线也引入到餐厅;
-
设计选材:整体空间考虑环保和经济,尽可能减少物料种类,大面积采用胡桃木饰面,通过不同块面的切割,顶面的抽缝造型,地面鱼骨拼的地板纹路,避免单调且富有层次;
-
用户体验:热爱生活,相爱的一对年轻夫妇,通过两个人的共同努力,在南京的第二个家。相比上一个家,男主人承诺女主人一定要满足她的衣帽间和女方父母可以住的房间,当然通过合理的规划,不仅实现了男主人的承诺,还有一个宽敞的客厅,通透的书房,爱情里没有什么比能给你一个温馨的家更美好的事情了。对于我们而言没有什么能比帮屋主实现幸福生活更为快乐的事了。
餐厅
客厅书房 (1)
20190725-李萍-新城市花园-打包-谢昊-小图1
客厅 (3)
厨房
书房 (2)
客厅 (4)
书房 (1)
客厅 (1)
卧室 (1)
卧室 (3)
主卫
空间布局合理性改造: 1.我们打开客厅和书房之间的墙,去掉了进门挡在餐厅和客厅之间的隔断,阳光就更好的从南穿北。。。。2.厨房L型设计成U型,增加储物空间的同时改变门的方向,打开厨房和餐厅之间,用高柜的形式将冰箱布置在厨房移门外,巧妙的窄变移门可分可合的藏在冰箱高柜后面,厨房时而敞开时而闭合;北边的光线也引入到餐厅; 2.进门左手取消原先的隔断,让小的玄关成为敞开式,和餐厅通过顶面和灯光处理分割空间,这样一来玄关、厨房、餐厅,客厅,书房,都是打开的空间,宽敞而又舒适。 3.取消原先客卫马桶边上卫生间的木门,解决因距离淋浴太近,门潮湿并遮光的因素,将原先的木门改成淋浴玻璃隔断,满足干湿分离; 4.主卫采用淋浴代替浴缸; 5.仔细看看餐厅的木饰面,电视墙,沙发墙边暗藏了些许的收纳柜,杂物是不是可以更好的收纳,看到没有电视背景隔断其实也是一个书房的收纳柜呢,里面放的可都是美术老师的画笔哦。。同时适当从书房隔离一块6平米空间,满足爱美爱生活的女主人的衣帽间,这个可是美术老师男主人对太太的承诺兑现哦。

