龙跃健身房



作品说明
- 项目类型:休闲娱乐
- 项目地点:崇左市
- 建筑面积:1150.0000㎡
- 项目造价:95.0000万元
- 主案设计师: 卢富喜
- 参与设计师:黄斌宾、庞涵、陈秋菊、陈宥伊
- 竣工时间:2019-07-10
- 设计机构:叁仓设计事务所
-
项目定位:项目位于广西龙州县,健身房在运营了5年后,业主希望这次改造能够在当地形成一个充满全新活力的社交空间, 带给这个城市的新老会员以更舒适的健身环境。我们试图寻求一个画面,试图找到一种与“静止”相关的创作主题。
-
空间意境:提炼了品牌名称“龙跃”这一词,通过一道红球组成的弧线造型,跨越空间的限制,创造出穿梭的感觉,弱化“龙”的概念。穿梭的红龙延展与蝶变,便是设计的全新赋能,带给人们无限的想象空间。整体空间设计简洁时尚,把龙的形态进行转化,红色镜面不锈钢球寓意着一条红龙,散发着活力的气息,热血与激情,这正是我们龙跃健身的精神!天花的圆形镜面仿佛龙吐出的气泡,镜面的效果,丰富了空间的层次感。
-
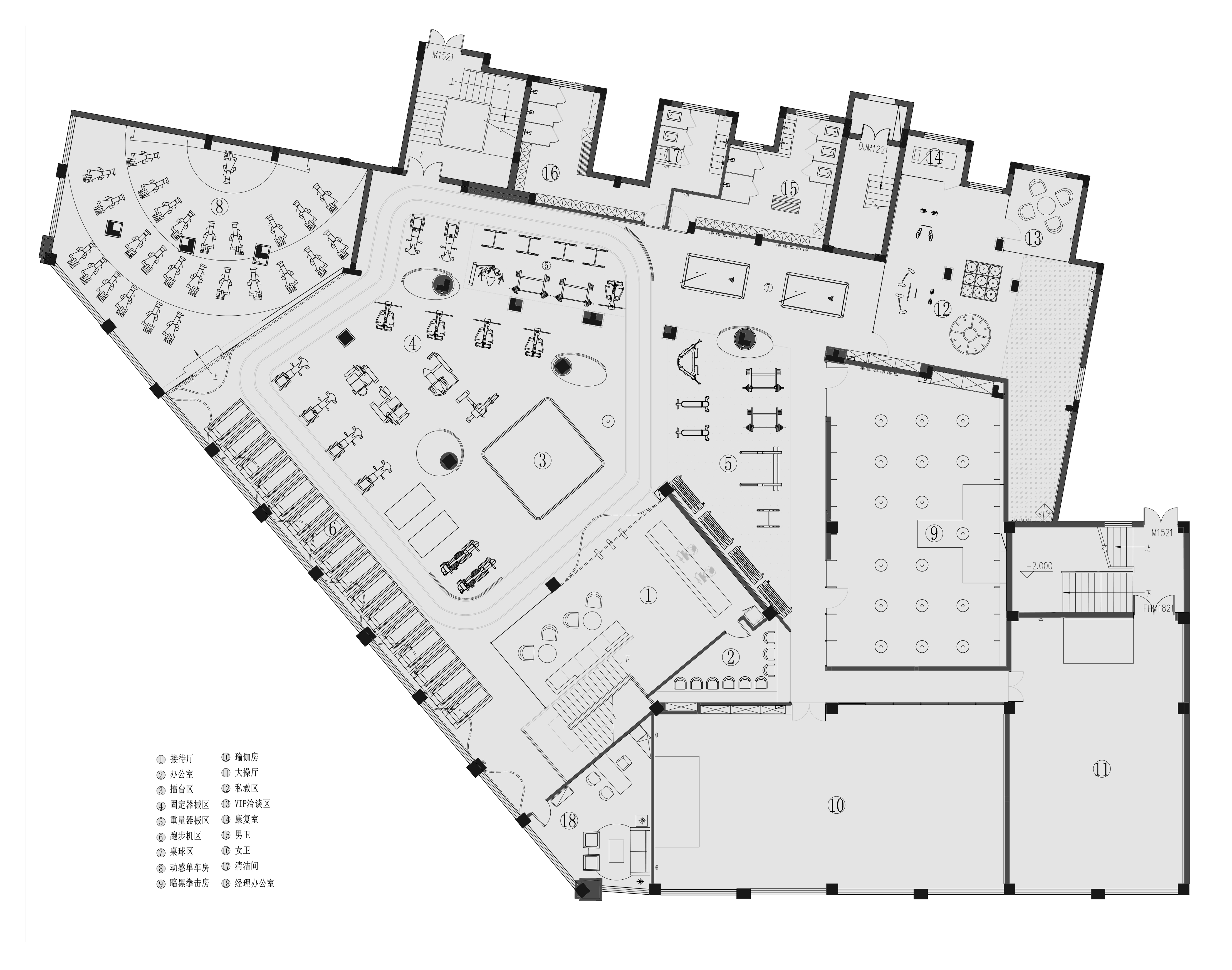
空间布局:整体空间时尚简洁,以白色为主调,合理的区域划分,前厅的设计形式把房间区和公共训练区进行了划分,让空间更具延展性。柱子的底部结合沙发坐垫,弱化了原有柱子的密集性。白色灯光和镜面相结合,丰富空间层次感,视觉上宽敞明亮,呈现出高级感。闸机通道仿佛一道时光之门,穿越到释放心灵的开阔空间。
-
设计选材:公共空间的主体材质,除了地面铺设的地胶,立面造型采用了乳胶漆和白色铁艺。设计就应该更纯粹,这样极简的空间,是设计师对建筑大师大卫•奇普菲尔德关于建筑的设计精神最美的回应。
-
用户体验:项目的完成度超出了预期,业主以及新老会员都很喜欢这次改造,也是健身房中的一股清流。空间简洁明快,使人容易静下心,忘却一天的烦躁,也满足了时尚人士的体验感。

