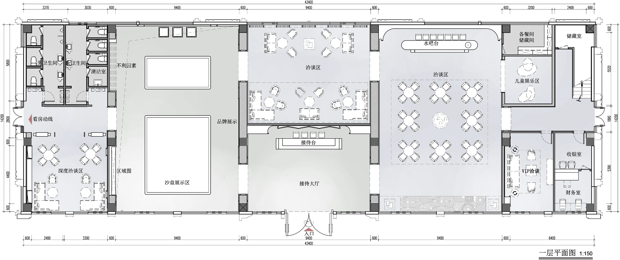
阳光城蚌埠麓山悦售楼处



作品说明
- 项目类型:样板间/售楼处
- 项目地点:蚌埠市
- 建筑面积:840.0000㎡
- 项目造价:0.0000万元
- 参与设计师:曹伟东、于是及GP团队
- 竣工时间:2019-09-01
- 设计机构:GP上榀设计
-
项目定位:中国意境、让设计变得有价值...
-
空间意境:在信息高速发展的环境下,把现代和中国元素融入到设计之中...
-
空间布局:从开始的设计到落地,阳光城蚌埠麓山悦售楼处让空间赋予生命...
-
设计选材:选材秉承环保、可持续性...
-
用户体验:业主满意,反响很好...

