永威.望湖郡销售中心
808
作品说明
- 项目类型:样板间/售楼处
- 项目地点:郑州市
- 建筑面积:1500.0000㎡
- 项目造价:4800000.0000万元
- 主案设计师: 河南西元绘空间设计有限公司
- 竣工时间:2018-11-30
-
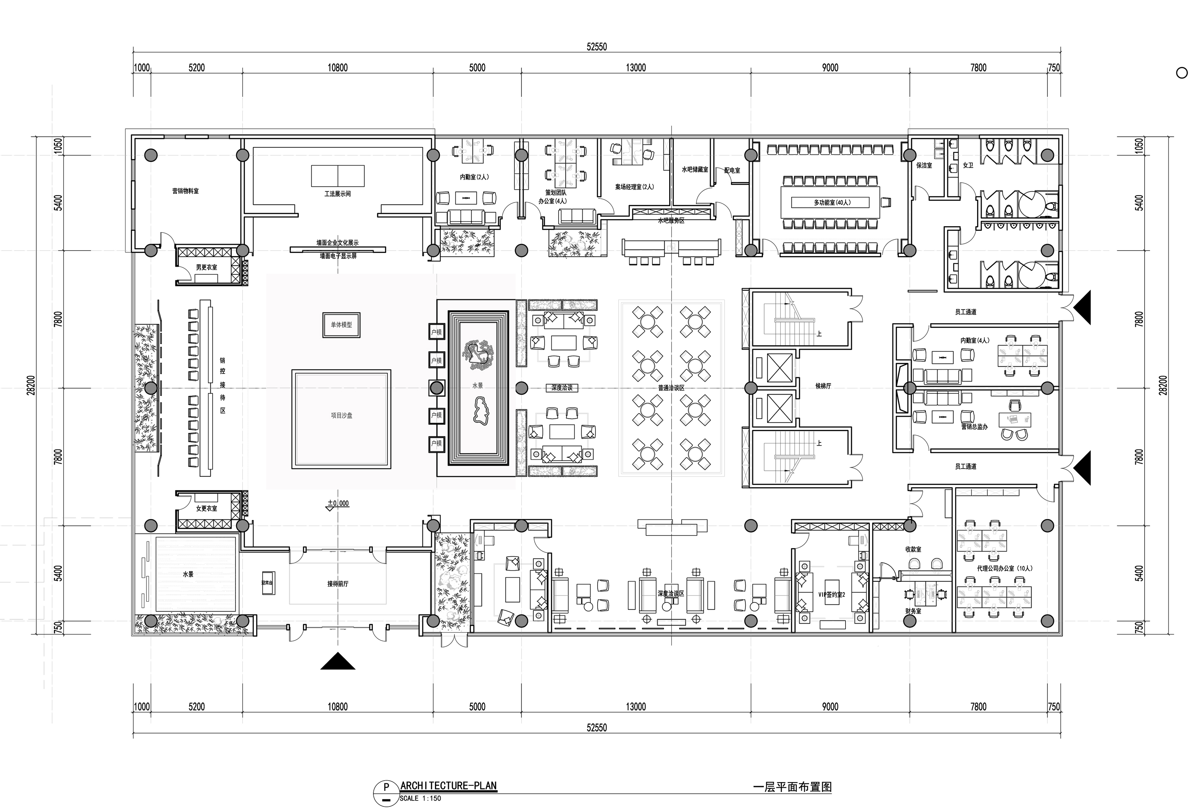
项目定位:本项目位于郑州市航空港区南部,属远郊项目,作为一个销售展示空间,本案提倡采用软销售(soft sell)的概念,目标是打造一个让客户能够自由体验、没有压力的自然空间。
-
空间意境:艺术创作宜简不宜繁,宜藏不宜露。在设计中摒弃了传统的陈俗与浮华,采用简洁自然的手法,将元素、色彩、照明等简化到最少的程度,更多的是对材料质感和工艺细节有很高的要求,室内保留了原建筑的结构柱,并通过把室外景观引入室内,强调功能、结构和形式的完整,追求材料、技术、空间的表现深度与精确,来平衡人与自然、建筑的关系,在静止的空间中,将时间和生命的流动性融合其中,营造出了自然含蓄的空间环境氛围。
-
空间布局:根据项目客群定位,整个室内空间呈开敞式动线,我们利用自然景观和水景的植入,分隔出相对独立的功能区域,空间看似通透但又互不干扰,既有营造销售组织暖场活动的开敞空间,又有高端VIP客户洽谈的私密空间。
-
设计选材:室内空间保留原建筑的混凝土柱子,与地面的水泥砖以及空间中的自然景观,打造出自然质朴的空间氛围。
-
用户体验:自项目投入使用到目前为止,客户对本案空间效果非常满意,并组织其他片区到本项目参观学习。
望湖郡 (1)
望湖郡 (2)
望湖郡 (3)
望湖郡 (4)
望湖郡 (5)
望湖郡 (6)
望湖郡 (7)
望湖郡 (8)
望湖郡 (9)
望湖郡 (11)
本项目位于航空港区南部,属远郊项目,作为一个销售空间,本案提倡采用软销售(soft sell)的概念,目的是打造一个让客户能够自由体验、没有压力的自然空间。 艺术创作宜简不宜繁,宜藏不宜露。整个室内空间呈开敞式自由动线,利用景观的植入分隔出独立的功能区域。在设计中摒弃了传统的陈俗与浮华,采用简洁自然的手法,将元素、色彩、照明等简化到最少的程度,更多的是对材料质感和工艺细节有很高的要求,室内保留了原建筑的结构柱,并通过把室外景观引入室内,强调功能、结构和形式的完整,追求材料、技术、空间的表现深度与精确,来平衡人与自然、建筑的关系,在静止的空间中,将时间和生命的流动性融合其中,营造出了自然含蓄的空间氛围。
1
1

认证 · 让您身份增值