MY造型会所


作品说明
- 项目类型:休闲娱乐
- 项目地点:银川市
- 建筑面积:150.0000㎡
- 项目造价:23.0000万元
- 主案设计师: 毛羽侬
- 竣工时间:2019-09-20
- 设计机构:宁夏海棠设计工程有限公司
-
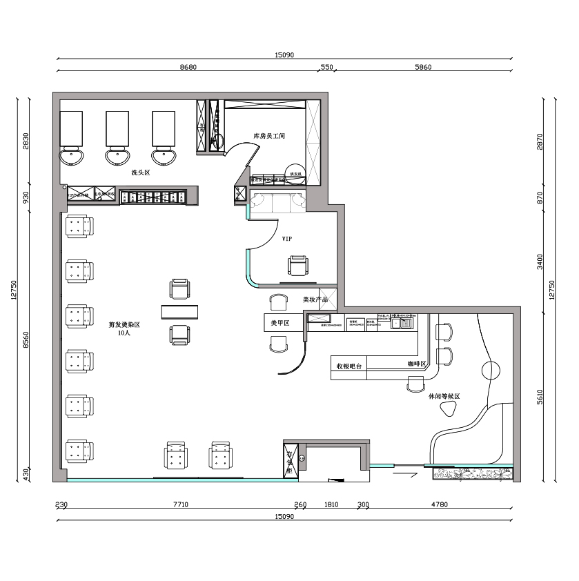
项目定位:本项目位于宁夏银川市大阅城商场内,本案业主对于店面客户定位偏向于35岁以下的时尚年轻女性。客户希望进店的客人能在体验到他们优质的服务同时,感受到满满的少女心。
-
空间意境:设计之初我以店名“MY”的手绘连笔形态联想到花瓣,故此花瓣成为了本案设计围绕的核心。从店面外立面的造型到每一个剪发位的镜面,空间里处处可见这样的元素,俏皮可爱同时也增加了店面形象的辨识度。除了花瓣的元素,空间内我还大量的运用了粉色和白色的搭配来烘托少女心的氛围,搭配上空中像泡泡一样的灯以及玻璃镭射放光的质感,从而让空间的梦幻感增加
-
空间布局:本案为环形动线,所有的剪发位环绕空间排布让整个店面看起来有条不紊。同时在空间的中心位置我们又单独设立了两个VIP的位置,通过与后期的氛围设计,让这两个位置的顾客可以成为视觉中心。
-
设计选材:材料方面除去墙地顶的基础材料以外,其实空间没有过多的装饰造型,我们通过实用功能与造型结合,降低了不必要的支出。同时所有的造型镜框都是采用钢管材质方面拆卸可重复利用。
-
用户体验:客户反应很好,全新的店面为客户初期引流增加很好的曝光点。

