兰州甘南路大龙火锅店
1922
作品说明
- 项目类型:餐饮
- 项目地点:兰州市
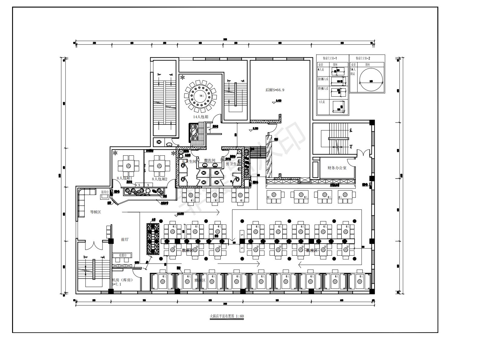
- 建筑面积:600㎡
- 项目造价:68万元
- 主案设计师: 杨皓然
- 竣工时间:2018-06-08
- 设计机构:甘肃盘石建筑装饰工程设计有限公司
-
项目定位:此项目位于兰州市甘南路东段,业主原地址是用来做商贸办公的,在原来基础上重新装修。设计之前业主和设计师沟通整体色调不能太深沉,而且业主要求不能没有中式传统文化,包厢要接待贵宾,摒弃传统火锅的普遍性还的要有传统文化的创新,所以设计师在市场调研后按业主的要求和新设计的概念融入。还有该项目在兰州大学附近,这边留学生较多,整体空间不仅要有看的有
调调,吃的有味道,还要有故事,这样不同的地方就会有不一样的心情。 -
空间意境:首先在整体空间上是以院落式意境展开设计的,你可以想象是在某个山头的山顶,或者是在闹市的一座旧宅院子里。环境风格上设计师没有运用过多形式上元素去表现,在原有的空间基础上,做了高低,繁简以及色彩的对比。让空间带给人们视觉上的愉悦以及功能上的舒适。正好有了枯景以及水景的的意境,让整个空间环境更有想象的余地。
-
空间布局:空间布局动线明确,不仅宾客来到这里方便就餐还有就是送餐迅速明确,大大提高运营当中的效率。原建筑中心位置正好有两个柱子,为了弱化这两个柱子,设计师在此做了错层式的结构,五层的错落叠加不仅让这块区域空间明确,而且很有层次。既可以想象成具象的两棵枝繁叶茂的大树,也可以说是景观园林当中的花棚。而且在结构上弱化了柱体也美化了空间。两边过道做了屋檐吊顶,有雅座区和散座区满足宾客人数的需求。
-
设计选材:1.地面过道做了自流平水泥,为了防止火锅油、水渍等渗入水泥地面,做了打蜡处理,水泥地里嵌入仿古铜字让整个过道显得生动有趣。桌底都用的是防滑防渗的仿古砖,简单大方美观。
2.中间花棚式造型吊顶以及柱体都是原木做清漆处理,保持原木的清香和有年轮的纹理,材料环保又有历史感。
3.枯景和水景里的小品是大家一起去黄河边捡的石头,还有墙上的葫芦,都是兰州当地的,甲方也帮我们找了很多,有特色而且又有意义.... -
用户体验:1.动线明确易于后期运营
2.材料环保有特色,不失火锅氛围
3.灯光布局合理不浪费,没有眩光的影响宾客的就餐
4.空间视觉愉悦明快,生动有趣
0
0

认证 · 让您身份增值