蒂芙尼蓝色的家


- 项目类型:住宅公寓
- 项目地点:南京市
- 建筑面积:140.0000㎡
- 项目造价:50.0000万元
- 主案设计师: 李萍
- 参与设计师:李萍
- 竣工时间:2019-04-02
- 设计机构:兆石室内设计有限公司
-
项目定位:本案位于市中心,业主是年轻白领女性,期待有个浪漫温馨的家,不足的是异形户型,要保证功能的完善以及舒适感需要重新梳理结构。我们将这个项目打造成都市白领快节奏生活之余,回到家中有一个放松心灵,愉悦心情的浪漫之家。同时用屋主最爱的蒂芙尼蓝色来打造匹配她个性标签的家。
-
空间意境:所以本案位于市中心的繁华地带,拥有大大的落地窗和丰富的街景,楼下就是繁华的商业地带,我们刻意将最棒的阳光,最好的街景,规划成为最舒适的客厅和卧室。尽可能保持简洁的视觉效果,凸显窗外风光。
-
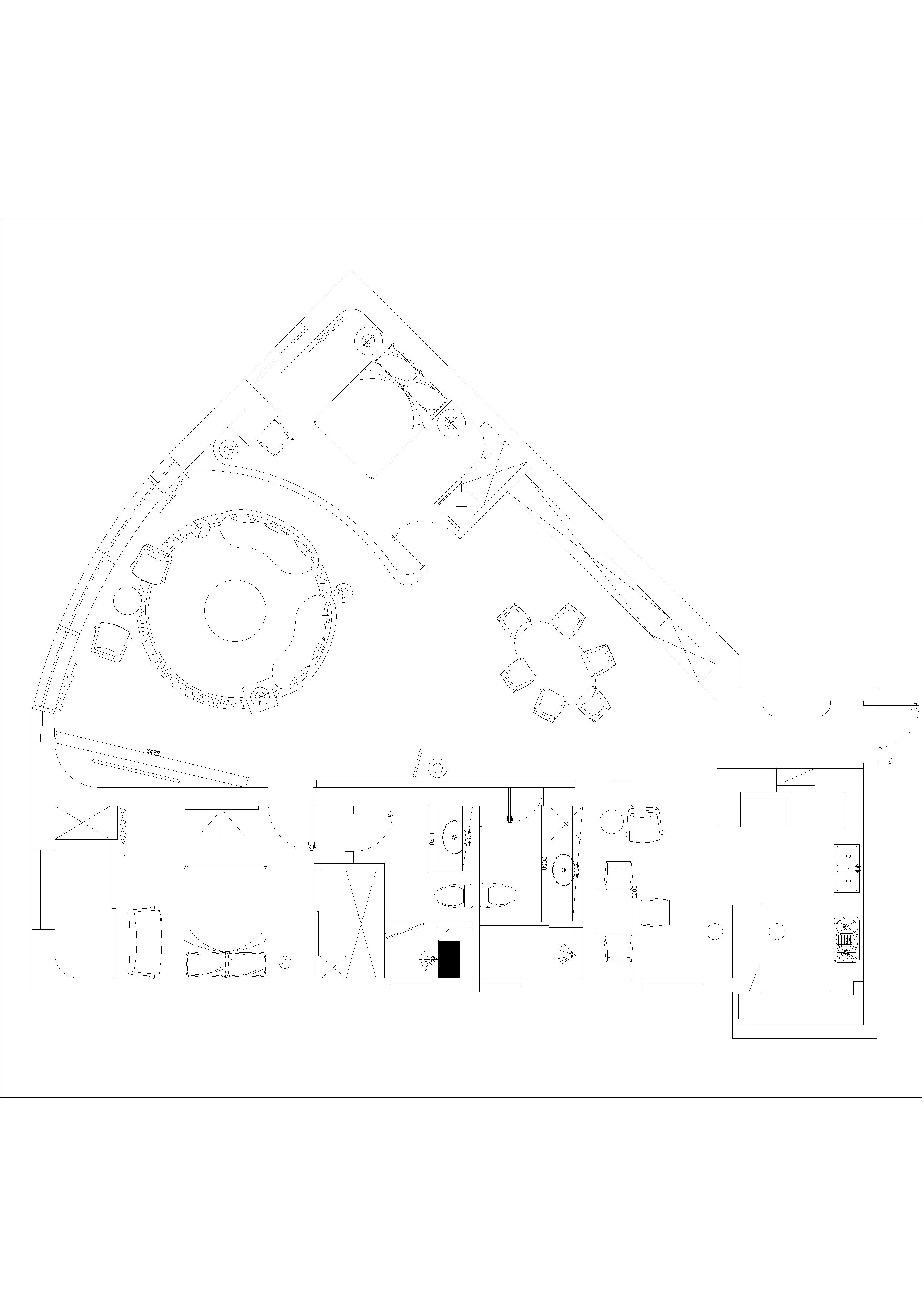
空间布局:异形空间采用“圆”作为设计的出发点,我们将次卧调整方向,改变餐厅空间尺度,从而更好地扩充客厅的空间感;以沙发为圆心,电视柜顺墙布置,将落地窗和弧形墙形成围合的空间;在次卧的对面设置一通透隔断规避进门的一眼望穿,划分区域;将厨房和邻近的小房间打通,符合业主长期居住国外使用宽敞开放厨房的生活习惯,考虑到国内生活的油烟问题,用一扇超窄边框移门让空间可分可合,美观兼顾实用;麻雀虽小五脏俱全,以功能为前提,将主卫、次卫以及主卧重新调整尺度和比例,将朝南的主卧分隔出阳台用来晒衣服,并改变主卫的动线增加衣帽间,并对主卫
-
设计选材:异形空间的圆弧墙面处理,采用马赛克代替常规的墙砖不仅防晒防水,还易于卫生打理;同时采用硬包,划分竖条造型来处理弧形的墙体,美观又经济;过多的门集中在一面墙,采用最普通的白色木板通过变换的几何装造型来弱化门,提升效果。
-
用户体验:在业主入住后的两周,我们接到了对方欣喜的电话。她说,没有想到原先让人头疼的圆形客厅,连沙发电视都不好摆放的空间,居然今天能够给她带来感动。特别喜欢现在的客厅,懒懒地坐在沙发上,欣赏着从早上到晚上,从日出到夕阳,从雨天到晴天,窗外不同街景带来不同的惊喜。不管有多疲惫不快,一切烦恼都会烟消云散。
20181102-李萍-丰汇大厦-打包-谢昊-大图 (4)
20181102-李萍-丰汇大厦-打包-谢昊-大图 (1)
20181102-李萍-丰汇大厦-打包-谢昊-大图 (2)
20181102-李萍-丰汇大厦-打包-谢昊-大图 (3)
20181102-李萍-丰汇大厦-打包-谢昊-大图 (11)
20181102-李萍-丰汇大厦-打包-谢昊-大图 (12)
20181102-李萍-丰汇大厦-打包-谢昊-大图 (13)
20181102-李萍-丰汇大厦-打包-谢昊-大图 (18)
20181102-李萍-丰汇大厦-打包-谢昊-大图 (5)
20181102-李萍-丰汇大厦-打包-谢昊-大图 (6)
20181102-李萍-丰汇大厦-打包-谢昊-大图 (7)
20181102-李萍-丰汇大厦-打包-谢昊-大图 (10)
20181102-李萍-丰汇大厦-打包-谢昊-大图 (14)
20181102-李萍-丰汇大厦-打包-谢昊-大图 (15)
20181102-李萍-丰汇大厦-打包-谢昊-大图 (16)
这是个不规则的户型,客厅大的落地窗采光很好,但是被次卧分隔的呈梯形,同时因为两个房门导致客厅并不好布局,餐厅又过于宽敞,浪费空间;进门玄关以及边上的小房间的开窗在整个建筑的天井内,所以采光很差,空间也比较小;次卫马桶和淋浴以及台盆拖把池的布置浪费空间的同时并不符合动线;打开衣柜两边的门进入主卫,淋浴的位置设计导致衣柜异常潮湿;
异形空间采用“圆”作为设计的出发点,设计师将次卧调整方向,改变餐厅空间尺度,从而更好地扩充客厅的空间感;以沙发为圆心,电视柜顺墙布置,将落地窗和弧形墙形成围合的空间;在次卧的对面设置一通透隔断规避进门的一眼望穿,划分区域;将厨房和邻近的小房间打通,符合业主长期居住国外使用宽敞开放厨房的生活习惯,考虑到国内生活的油烟问题,用一扇超窄边框移门让空间可分可合,美观兼顾实用;麻雀虽小五脏俱全,设计师以功能为前提,将主卫、次卫以及主卧重新调整尺度和比例,将朝南的主卧分隔出阳台用来晒衣服,并改变主卫的动线增加衣帽间,并对主卫及次卫的内部进行调整,冲淋布置在靠窗的位置更好的解决潮湿。

