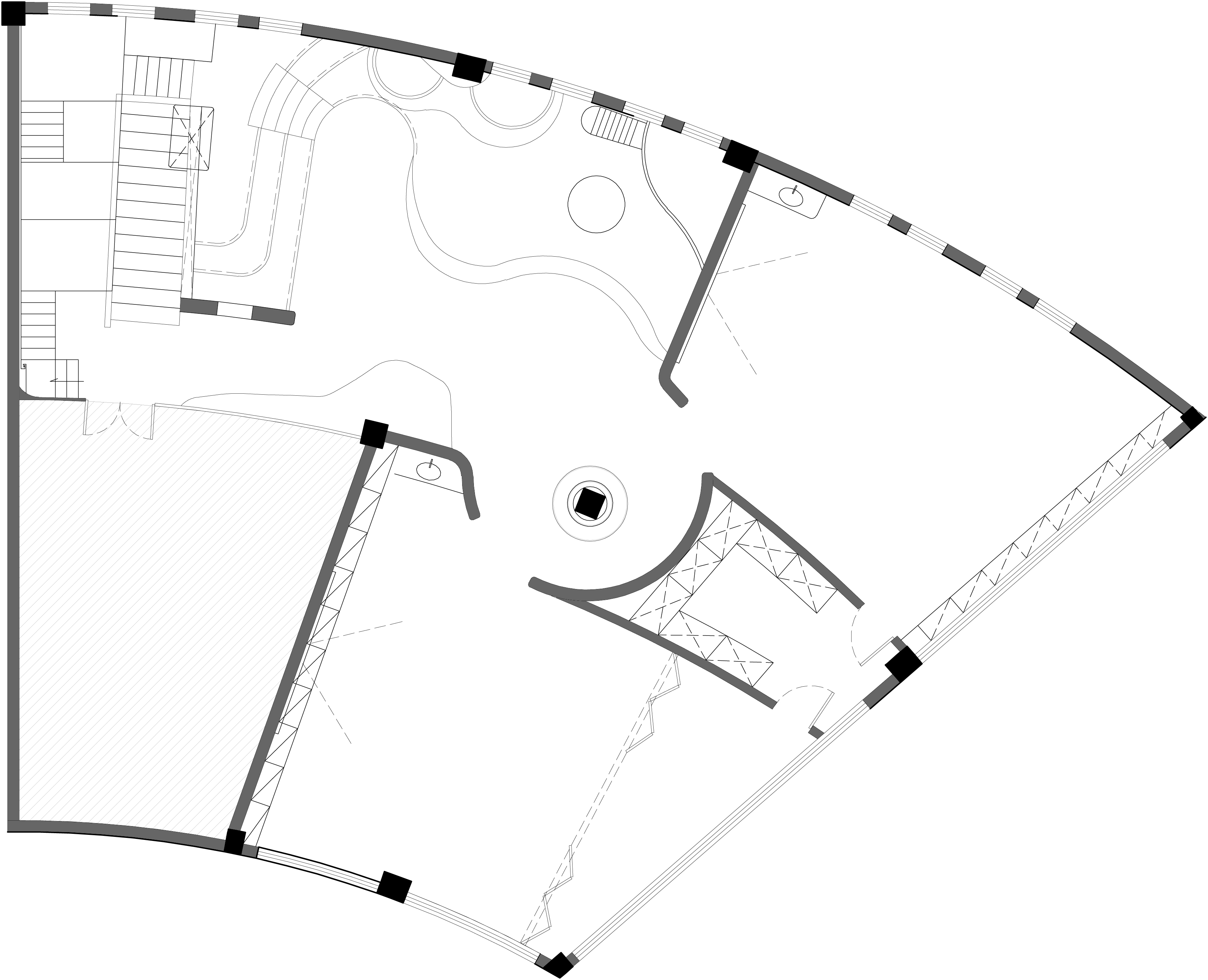
光谷几古亲子中心



作品说明
- 项目类型:公共
- 项目地点:武汉市
- 建筑面积:620.0000㎡
- 项目造价:75.0000万元
- 参与设计师:万鹏,宋康,熊涛,王帅
- 竣工时间:2019-04-15
- 设计机构:汇智锦创设计
-
项目定位:0至8岁儿童亲子绘本馆
-
空间意境:在钢筋混凝土的城市角落,追寻自然的行云流水,给孩子一个贴近自然生活的栖息地.
-
空间布局:看似自由,却遵循规律,充满律动感的空间功能布局设计,尊重孩子的行动轨迹,灵活不设限,满足孩子对空间的好奇.
-
设计选材:整个空间设计的用材上以环保绿色涂料,木饰面,软性材料为主.环保绿色涂料的使用消除装修材料潜在的有害物质对儿童健康的隐患,有效控制装修成本;木饰面的点缀及功能用途,让空间充满亲切的温度;软性材料在空间中的使用,更好地保护了儿童运动轨迹的安全性.
-
用户体验:光谷儿童亲子中心给孩子及家长一种全新的空间体验,区别于传统亲子绘本馆的生硬,在行云流水的塑造空间里,孩子们多了一份快乐和肆意的欢喜

