有节



作品说明
- 项目类型:餐饮
- 项目地点:湖州市
- 建筑面积:200.0000㎡
- 项目造价:100.0000万元
- 主案设计师: 陈海
- 竣工时间:2018-10-06
- 设计机构:南京木桃盒子设计
-
项目定位:竹有节,人亦有节,空间更要有节
竹之节在于力争向上,在于淡漠清雅,在于悠然脱俗。
设计师以竹为主要的装饰元素,用简单自然的手法将记忆中的竹林、小径、石阶、崖壁、群山融入其中,没有过多的装饰,整个空间以自然材质为主,通过空间的迂回起伏错落增加变化和趣味,营造意境悠远、清新雅淡,不同以往的日式餐饮氛围。 -
空间意境:设计师以竹为主要的装饰元素,用简单自然的手法将记忆中的竹林、小径、石阶、崖壁、群山融入其中,没有过多的装饰,整个空间以自然材质为主,通过空间的迂回起伏错落增加变化和趣味,营造意境悠远、清新雅淡,不同以往的日式餐饮氛围。
-
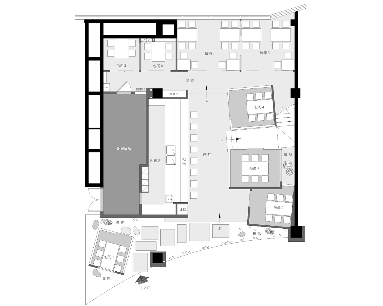
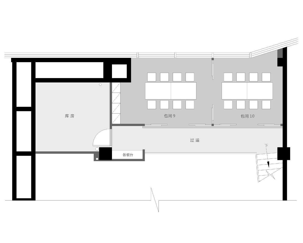
空间布局:没有按传统的前散座后包间的形式,而是将几个方形卡座包间以散落的形式,高低错落分布,但又聚向吧台,各自为景,互为联系。
将店门入口的形式弱化,而用石径汀步来迂回,门口卡座的设置也是为了增加空间趣味性。如同中式山水画中前景的茅屋小亭。
前厅中间留一石阶楼梯,通往二层包间。
将景观最好的位置留给一层的散座和二层的包间,散座可分可合,需要时可以当包间使用。
二层包间是榻榻米形式,巧妙地将一层的空调设备隐藏在卡座下方,节约了空间。 -
设计选材:设计师以竹为主要的装饰元素,用简单自然的手法将记忆中的竹林、小径、石阶、崖壁、群山融入其中,没有过多的装饰,整个空间以自然材质为主,通过空间的迂回起伏错落增加变化和趣味,营造意境悠远、清新雅淡,不同以往的日式餐饮氛围。
-
用户体验:此店面已营业,客户对设计效果很满意。

