集装箱的升华-品岸设计办公室
2096
作品说明
- 项目类型:办公
- 项目地点:上海市
- 建筑面积:200.0000㎡
- 项目造价:30.0000万元
- 主案设计师: 徐鼎强
- 参与设计师:徐鼎强,普天姿,庄惠群
- 竣工时间:2019-09-01
- 设计机构:上海品岸建筑装饰工程有限公司
-
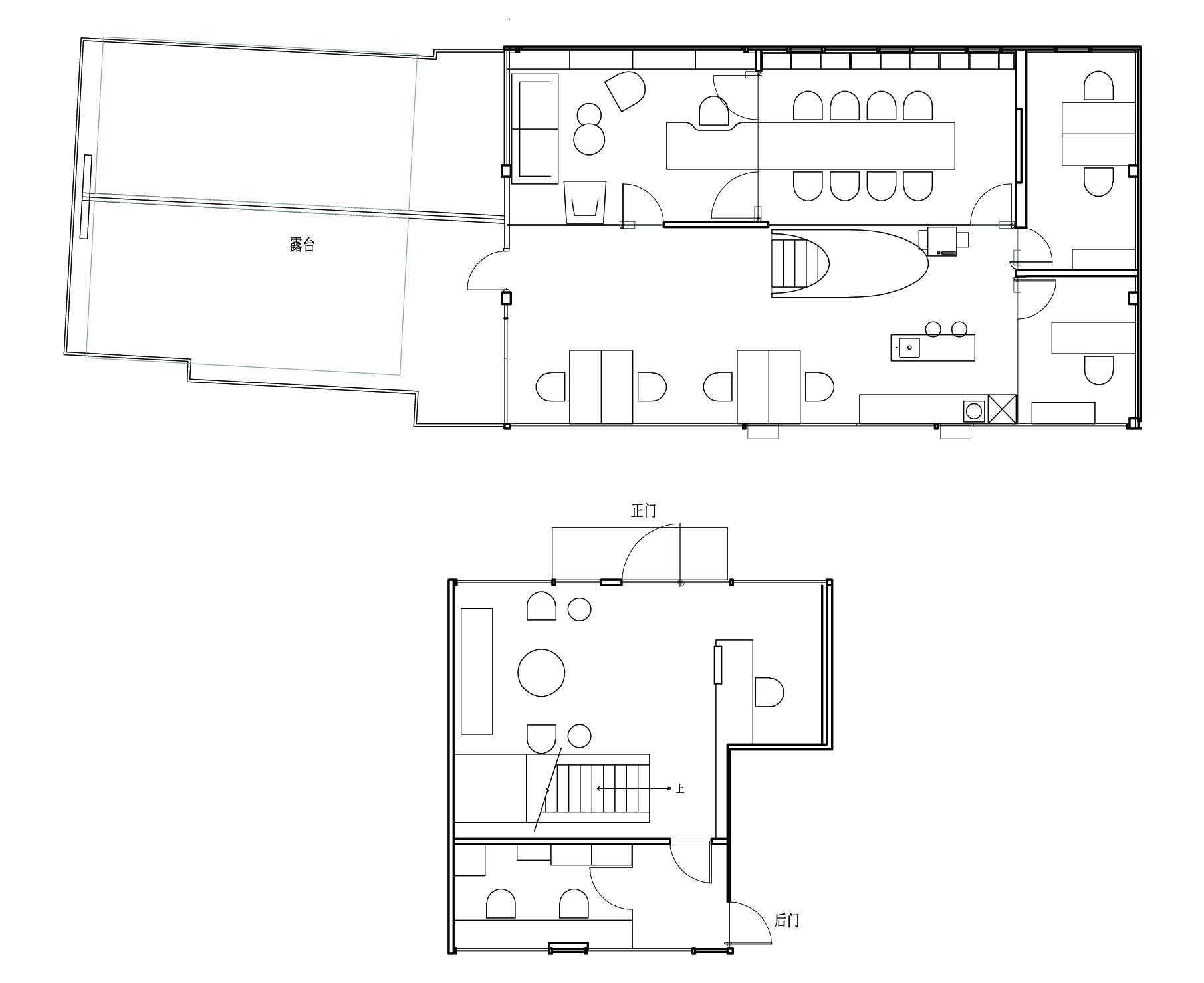
项目定位:项目由六只标准集装箱叠加组合而成,突破常见办公空间的构造形式,赋予集装箱新的生命力。
-
空间意境:整体采用现代风格作为基础,有机地融入工业风和科技感的元素。
-
空间布局:三大三小六只集装箱叠加组合,通过一个椭圆柱体的楼梯穿插连接,所有功能以楼梯为中心分散布局,实现功能区域的空间利用率最大化。
-
设计选材:所有材料都尽可能采用可回收材料,在尺寸规划上尽量做到物尽其用,比如吧台就是采用搭建楼梯剩下的槽钢边角料加工而成。
-
用户体验:建成投入使用后收到所有到访者的一致好评。
1
2

认证 · 让您身份增值