奢雅唐城
301
作品说明
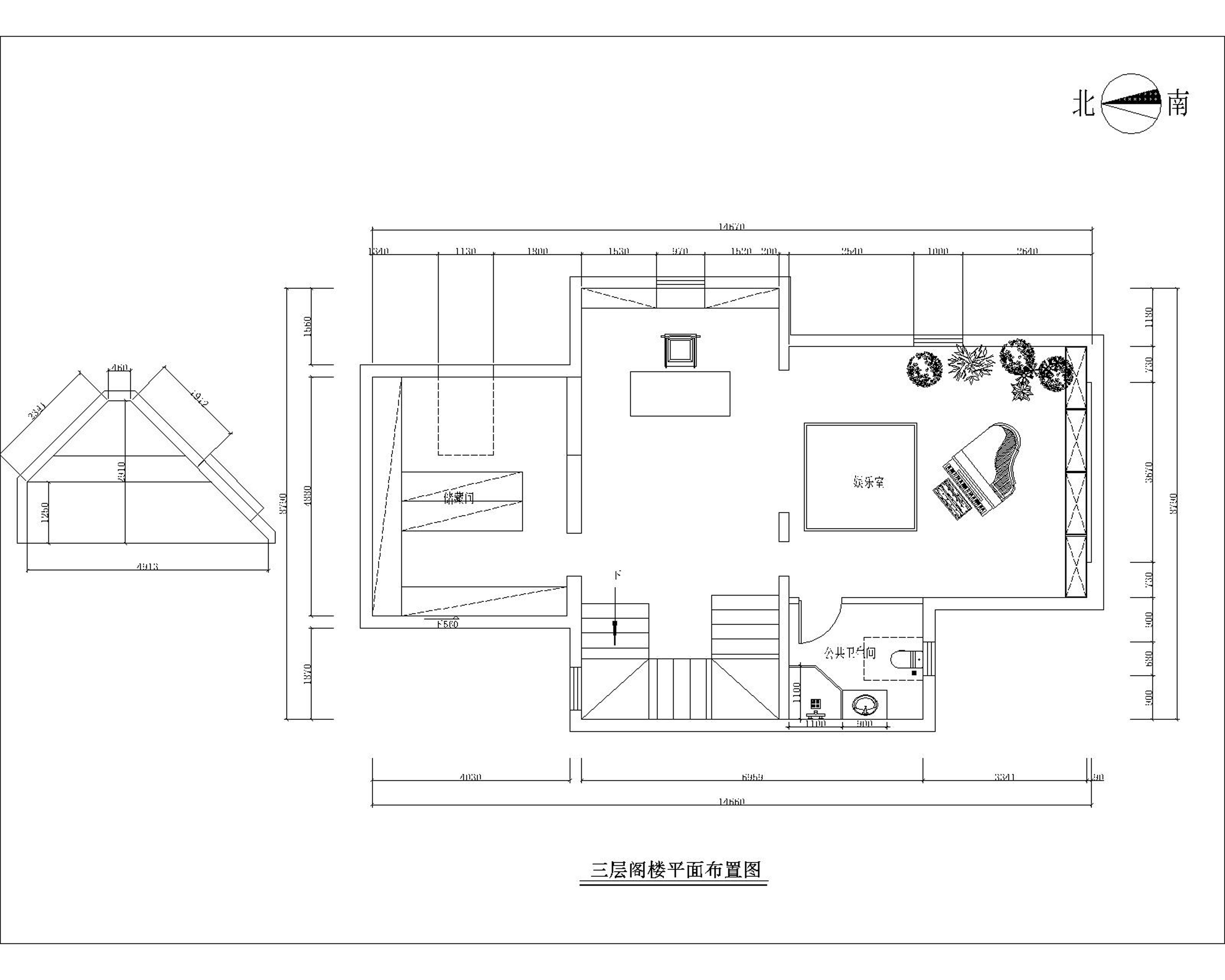
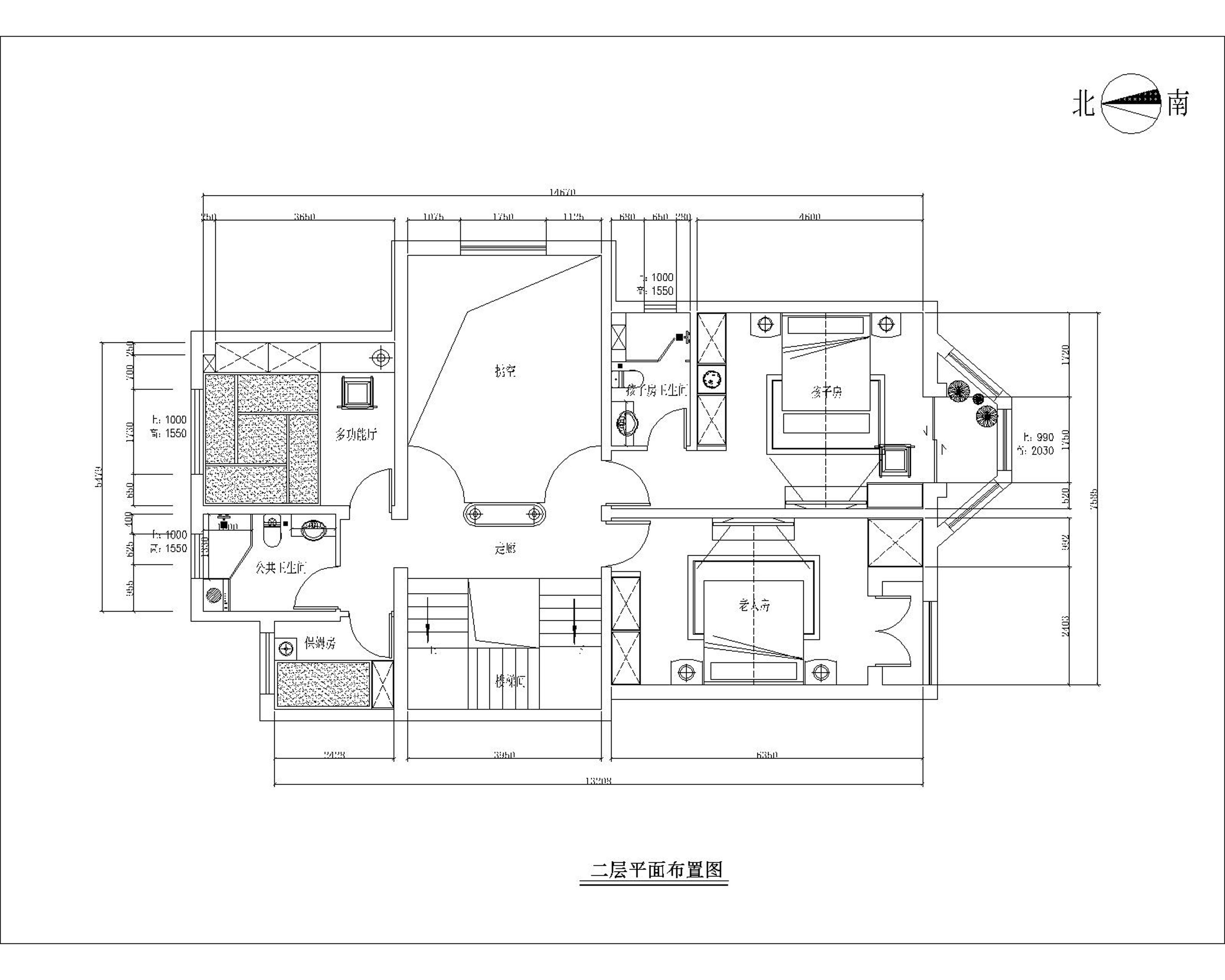
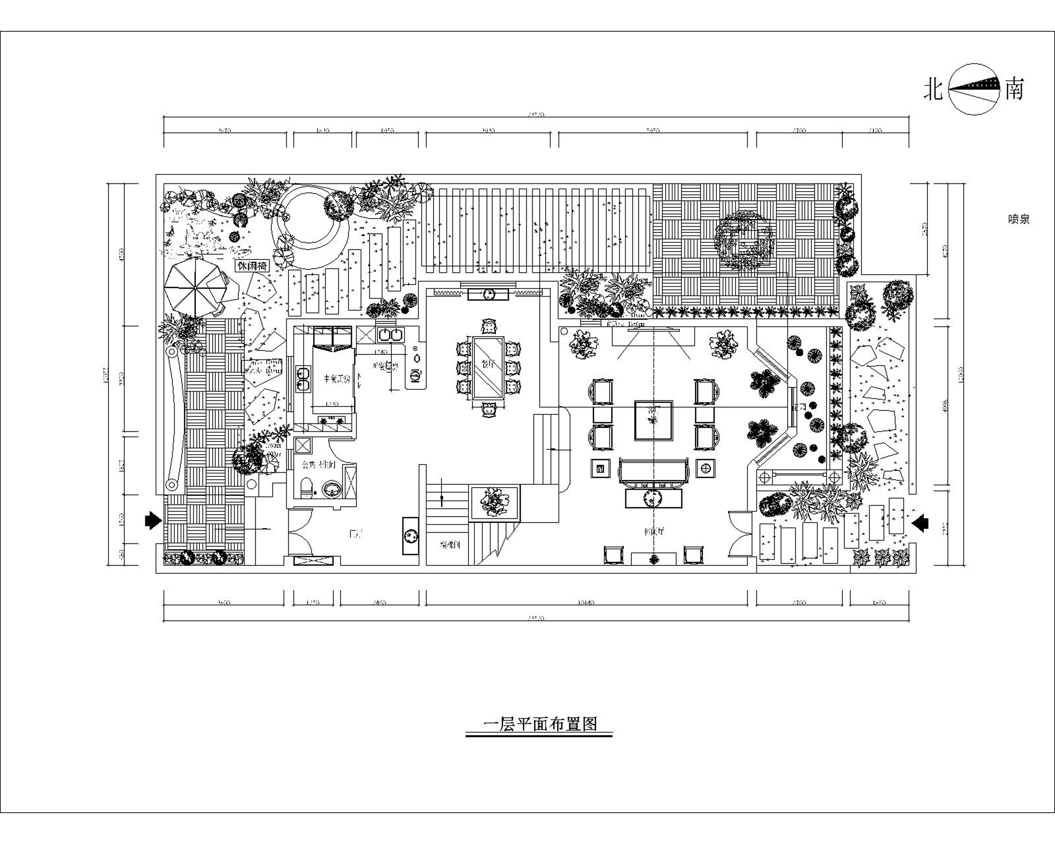
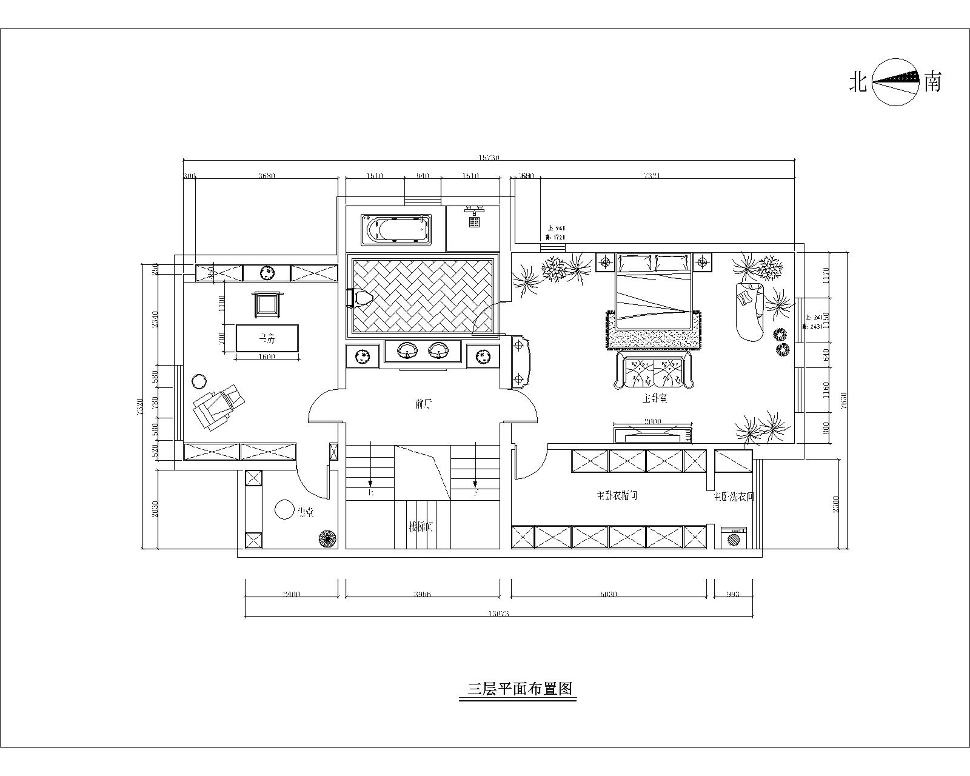
- 项目类型:别墅
- 项目地点:唐山市
- 建筑面积:640.0000㎡
- 项目造价:450.0000万元
- 主案设计师: 关霞
- 参与设计师:关霞
- 竣工时间:2018-09-26
- 设计机构:三合亦尚
-
项目定位:奢华,高端,随意但不失奢雅艺术气息
-
空间意境:缜密的方式推敲色彩,研究搭配,不断尝试让整个空间融入色彩纹理,材料几何和平面的建筑要素
-
空间布局:将原有的界限打开,利用线条与颜色的色彩重新划分,定义彼此提供居住者和家人不同的生活经验,以及更具有互动式的情感连接,把人们常常说的生活,需要仪式感的想法,都一一体现到我们奢雅古典别墅的艺术空间当中
-
设计选材:选用独特的天然的大理石作为电视背景墙
进口的艺术地砖大面积的铺贴
木作与软硬包相结合 -
用户体验:业主很喜欢整体的装修,跟满意我们的服务
mmexport1573632230389
mmexport1573632237594
mmexport1573632244325
mmexport1573632251873
mmexport1573632275113
mmexport1573632341695
mmexport1573632358045
mmexport1573632312946
mmexport1573632349957
mmexport1573632364753
mmexport1573632371108
mmexport1573632376407
mmexport1573632382520
mmexport1573632387421
0
0

认证 · 让您身份增值