招商蛇口虎门雍和府E
1471
作品说明
- 项目类型:地产
- 项目地点:东莞市
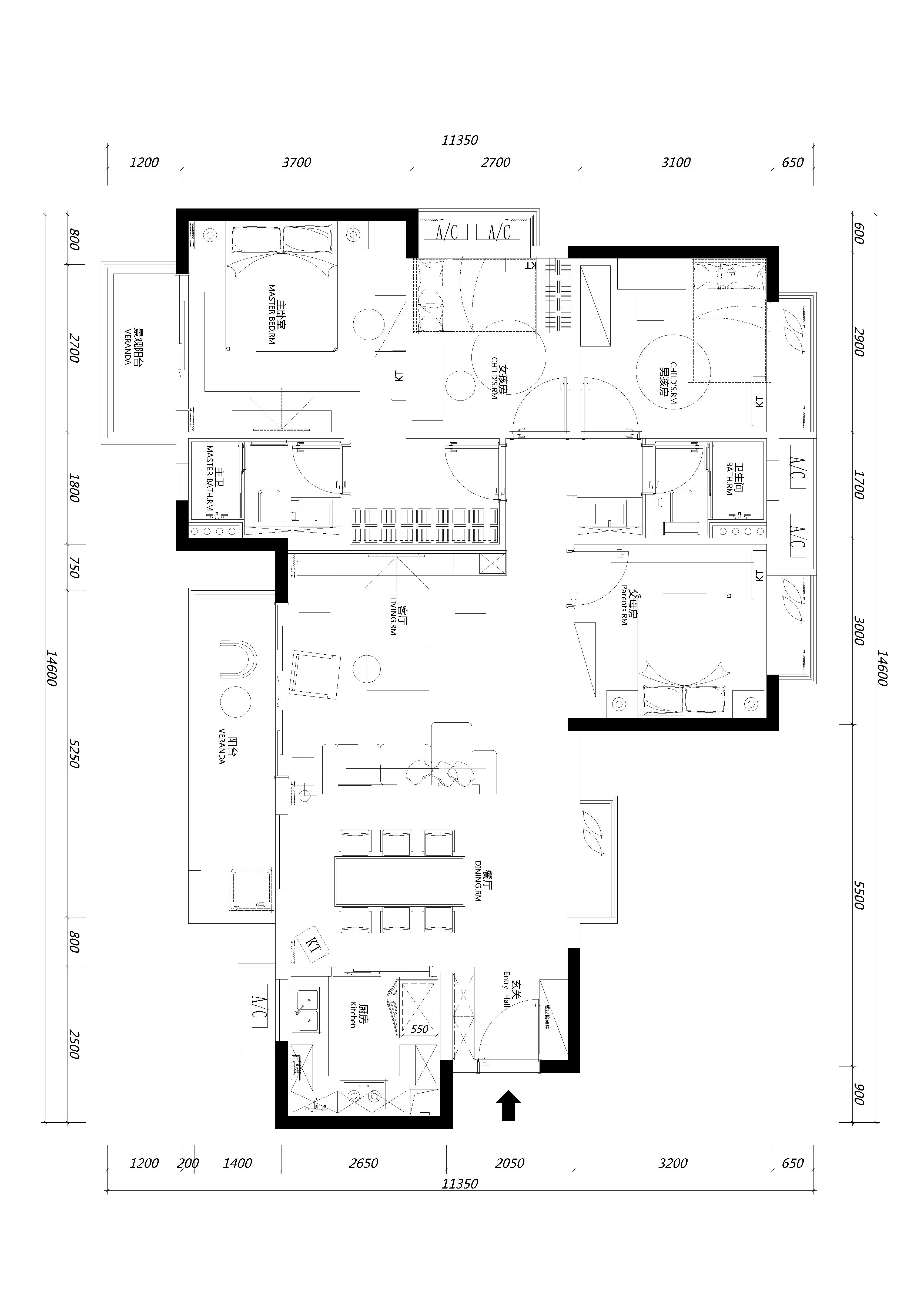
- 建筑面积:125.0000㎡
- 项目造价:37.0000万元
- 参与设计师:李坚明、黄淀康、冼宇波、吴浣莹
- 竣工时间:2019-10-16
- 设计机构:东莞市蜜尔室内陈设设计有限公司
-
项目定位:为当代精英阶层提供一个集年轻、时尚、品质选择,将设计的思路赋予巧妙的光影,辗转于每个角落,用矛盾的色彩搭配,融合不同的元素。呈现空间和而不同的协调美感。彰显他们在社会上个性的身份。
-
空间意境:现代时尚风格中,蕴育出宁静与美观的特质,为在创造舒适氛围的同时体现美学理念。全案运用五感的手法,体现出品质之感、共生之美以及光影之貌。
-
空间布局:户型为4房2厅,满足了住用的实用功能。分区明显动静皆宜。客厅与餐厅贯穿,用色干净、简约,层次分明。白色、蓝色两种主题色相得益彰。主卧及侧卧运用了简约精致的空间装饰,搭配适度的艺术品,体现了一种克制的极致美学。女孩房用甜而不腻的茱萸粉搭配,没有主流粉色的甜腻,却多了一丝阳光和温馨。优化了儿童房的布局空间,把床靠近飘窗,衣柜则放置在床尾,加大空间活动性。
-
设计选材:金属、皮革、石材、布艺、玻璃
-
用户体验:整个空间利用了开放、流动的手法糅合充足的采光。蓝白色调相融合,身处其间,似乎有云有海环绕,让人不禁放松、静心。
1
1

认证 · 让您身份增值