浪潮一览云山营销中心



作品说明
- 项目类型:样板间/售楼处
- 项目地点:涿州市
- 建筑面积:1500.0000㎡
- 项目造价:450.0000万元
- 参与设计师:李怡明、周全贤、梁永悦、李画、吉时超、王海申、张帆、付鑫
- 竣工时间:2019-10-31
- 设计机构:北京清石建筑设计咨询有限公司
-
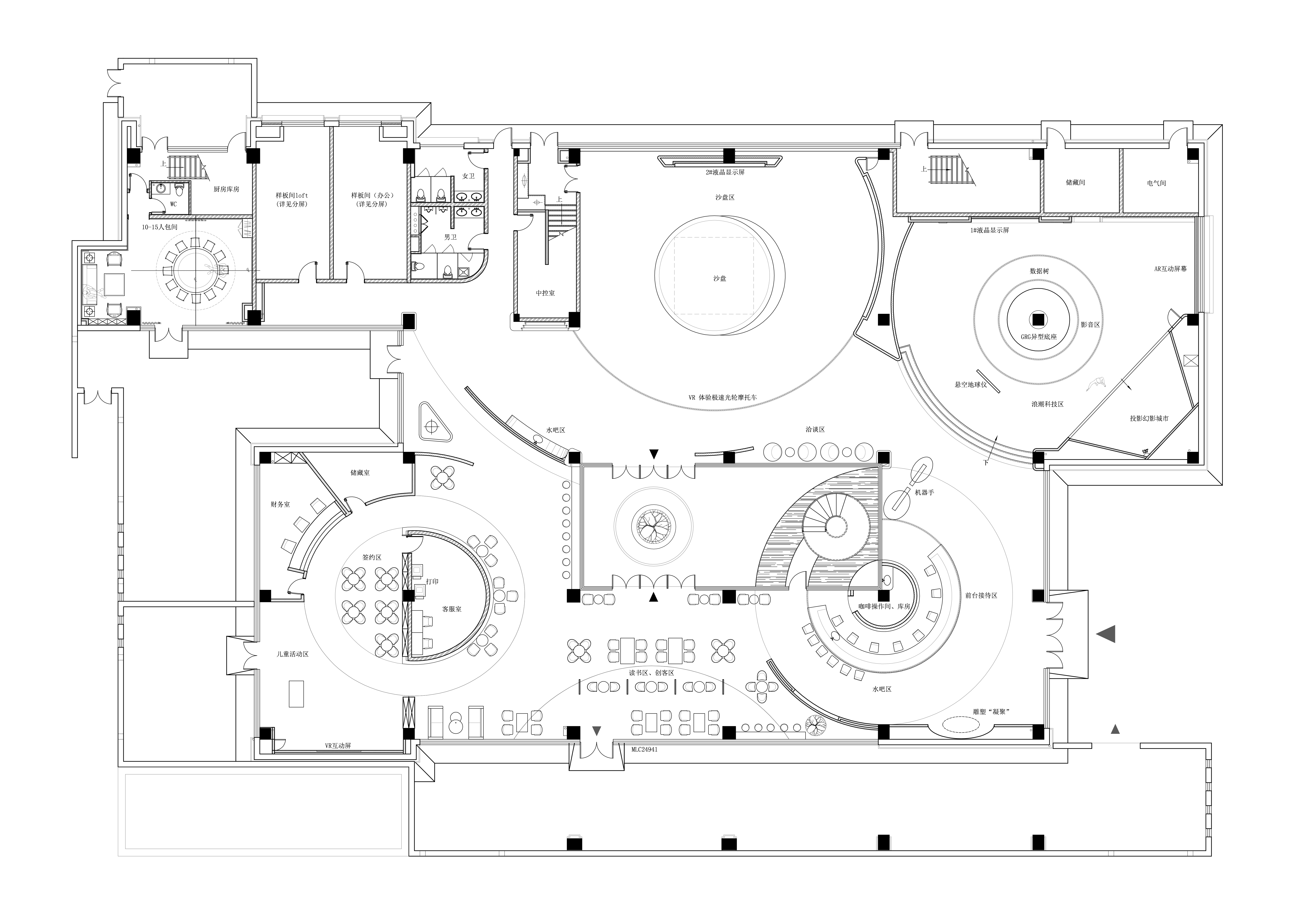
项目定位:浪潮一览云山项目作为浪潮涿州大数据产业服务基地,其营销中心的设计定位就是打造科技馆式、体验式的营销中心。设计中融入VR体验、3D幻影城市、全息投影、机械臂等高科技技术和扎哈风格的场景,营造科技未来感的视听盛宴。
-
空间意境:空间是什么?空间是视觉感观后的心灵意境。本案在空间形态的设计中如何体现浪潮大数据的科技特性?对于空间设计师李怡明、周全贤的理解大数据是流动的汇聚、是像云一样虚拟的运算,设计中提取科技感的“二进制”元素和“行云流水”的曲线空间造型,利用光和镜面的反射营造科幻的大数据意境。
-
空间布局:在空间布局上用“行云流水”的曲线造型链接前台接待区、浪潮展示区、沙盘区、儿童区和书吧咖啡区。每一个功能区都是一个视觉中心点,一步一景、层层递进,让客户完成科技感十足的沉浸式体验。项目中间区域为室外中庭区域,起到了链接各功能区的作用,在室外中庭设计了形式感十足的旋转楼梯作为中庭去的视觉中心、同时也起到了是连接二层办公空间的作用。
-
设计选材:地面材料选择
阿姆斯壮塑胶地板------铺贴快、施工周期快、为甲方节省时间
水磨石-------地面可以做到无缝连接、美观度高
冠军黑色高亮光地砖------反射空间、增加空间的维度、价格便宜
顶面材料选择
裸顶喷乳胶漆------节能环保、经济实惠、方便隐蔽工程的检修和使用
条形铝板灯带------工厂加工现场安装,节省时间周期
软膜天花------配合投影设备、可以随时更换展示内容
墙面材料
铝板穿孔------科技感十足
GRG高强石膏-----服务台及科技树底座,异形可塑性强 -
用户体验:被评为京西最科技最美的售楼处。

